
Về không gian tôi có mong muốn như sau: Căn hộ mới gồm 3 phòng ngủ (1 phòng cho bé trai, 1 cho bé gái và 1 cho vợ chồng) và 2 toilet. Tôi mong các KTS sẽ tư vấn cải tạo và bố trí nội thất để tôi có được một không gian sống hợp lý.
Chân thành cảm ơn.
Thanh Hiếu
Dựa trên thông tin và những yêu cầu mà bạn cung cấp, chúng tôi xin đưa ra tư vấn thiết kế mặt bằng như sau:

Mặt bằng hiện trạng

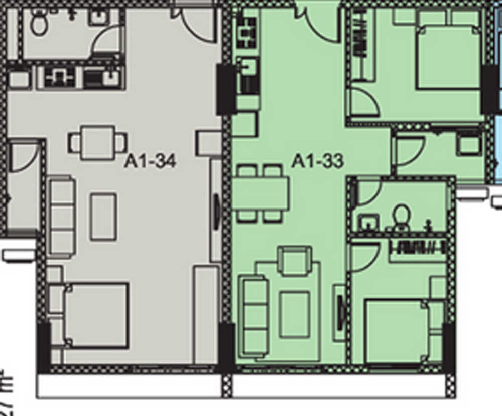
Mặt bằng sau khi cải tạo
Không khó để thiết kế không gian thoải mái, tiện nghi, hợp phong thủy với căn nhà có diện tích rộng và vuông vắn.
Theo mong muốn của bạn, chúng tôi đã đưa ra phương án bố trí không gian sinh hoạt chung ở khoảng đầu của căn hộ, bao gồm phòng khách, phòng bếp và nhà vệ sinh. Với cách phân chia không gian như vậy sẽ giúp nhà bạn rộng rãi và tiện nghi hơn.
Phòng khách, bếp và ăn được bố trí hợp lý tích tụ cùng một không gian, vệ sinh vẫn được giữ nguyên.
Nội thất phòng bếp sử dụng hệ tủ bếp chữ I để tiết kiệm diện tích, kèm theo bộ bàn ghế 6 người bên cạnh logia có thể nhìn ra bên ngoài rất tiện nghi và thoáng mát. Việc đưa bếp ra phía giữa cũng sẽ giúp cho căn hộ thông thoáng, bớt mùi dầu mỡ hơn, tạo cho không gian ở luôn sạch sẽ và khô ráo.
Không gian sinh hoạt riêng gồm có 3 phòng ngủ, 1 phòng ngủ master và 2 phòng nữa dành cho con.
Phòng ngủ master được bố trí hướng ra mặt tiền và ưu tiên có thêm vệ sinh riêng nhỏ. Căn phòng sử dụng những đồ nội thất đơn giản như giường ngủ đôi, tủ quần áo, kệ tivi, ghế bành và bàn làm việc kết hợp với bàn trang điểm. Hai phòng ngủ cho con được bố trí những đồ nội thất như giường ngủ, tủ quần áo, bàn học cũng được ưu tiên gần cửa sổ để lấy ánh sáng tự nhiên.
Bạn cũng có thể bố trí thêm cây cảnh hoặc sử dụng những đồ trang trí theo sở thích, giúp cho căn hộ luôn tươi mới và xanh mát.
Hy vọng với phương án bố trí này sẽ đáp ứng được tiện nghi cũng như nhu cầu sinh hoạt của bạn và gia đình.
Dưới đây là một số hình ảnh tham khảo giúp bạn hình dung không gian sống của mình được tốt hơn.

Phòng khách sử dụng hệ sofa chữ L và bàn tròn sang trọng

Kệ tivi lớn kết hợp với tủ sách

Bếp hình chữ I sáng màu giúp cho không gian tiện nghi hơn

Bàn ăn được thiết kế đơn giản, tinh tế

Phòng ngủ của bố mẹ được thiết kế hiện đại với tông màu trắng - đen

Phòng ngủ của con gái sử dụng gam màu nhẹ nhàng, dễ chịu

Phòng ngủ của con trai lấy màu xanh làm điểm nhấn

Phòng tắm tiện nghi
Ý kiến bạn đọc
Những tin mới hơn